Если цена в объявлении изменится, мы сразу сообщим вам об этом на электронную почту.
Нажимая «Подписаться», вы соглашаетесь с правилами.
продам дом, Михаила Лазарева, 610 900 000 ₽
15 сен
Дата публикации объявления
Обн. 12 окт
Дата обновления объявления
59 239 ₽/м²
Чистая продажа
Термин "Чистая продажа" означает, что в квартире никто не прописан или
есть куда выписаться и вывезти вещи. Это лучший вариант для покупателя.
Вероятность срыва сделки минимальна.
Этажей2
Площадь участка20 соток
Общая площадь184 м2
Материал домадерево
ЭлектричествоЕсть
Газоснабжениецентральное
На продажу выставлен просторный дом 183,3 кв.м на участке 20 соток с. Северское Коломенский район 1,5 часа от МКАД по новой дороге Новорязанского шоссе.
с. Северское благополучный частный сектор с, находится в 10 км от Коломны по хорошей асфальтированная дорога.
Участок 20 соток правильной формы, огорожен, назначение личное подсобное хозяйство. На участке растут плодовые деревья: яблони, груши, кустарники, которые создают атмосферу красоты и чистого воздуха. На участке есть гараж.
Дом 183,3 кв.м построен каркасный, утеплен и обшит сайдингом , теплый, фундамент блоки фбс., первый этаж перекрытие плиты, второй деревянный.
Коммуникации: свет , вода скважина, канализация септик, газ по границе.
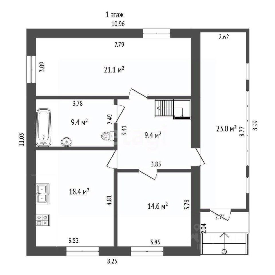
1 этаж: Просторный холл 9,4 кв.
На продажу выставлен просторный дом 183,3 кв.м на участке 20 соток с. Северское Коломенский район 1,5 часа от МКАД по новой дороге Новорязанского шоссе.
с. Северское благополучный частный сектор с, находится в 10 км от Коломны по хорошей асфальтированная дорога.
Участок 20 соток правильной формы, огорожен, назначение личное подсобное хозяйство. На участке растут плодовые деревья: яблони, груши, кустарники, которые создают атмосферу красоты и чистого воздуха. На участке есть гараж.
Дом 183,3 кв.м построен каркасный, утеплен и обшит сайдингом , теплый, фундамент блоки фбс., первый этаж перекрытие плиты, второй деревянный.
Коммуникации: свет , вода скважина, канализация септик, газ по границе.
2 этаж: Четыре спальни 12,1 кв.м, 16,4 кв.м, 18,7 кв.м , 23,9 кв.м , выход на просторную отапливаемую террасу -лоджия 27,9 кв.м, санузел (душевая) 4,7 кв.м
Дом просторный , теплый , есть полноценный сухой подвал. Этот вариант подойдет для большой семьи, которая мечтает о загородном доме недалеко от г.Коломны.