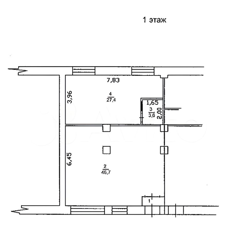
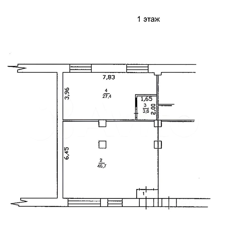
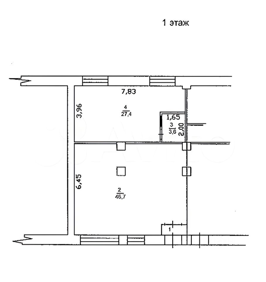
Нежилое помещение свободного назначения 79 кв. М.
Первая линия главной улицы Коломны. Первый этаж жилого дома. Отдельный вход с улицы. Рядом остановка трамвая, через дорогу ж/д станция Голутвин, интенсивный пешеходный трафик.
Все коммуникации. Электрическая мощность 30 квт.
Прямая аренда.
Первый год аренда 100 000 руб/месяц, со второго 120 000 руб/месяц.












