Если цена в объявлении изменится, мы сразу сообщим вам об этом на электронную почту.
Нажимая «Подписаться», вы соглашаетесь с правилами.
продам дом, Сельский Строитель СНТ9 000 000 ₽
8 авг 2025
Дата публикации объявления
Обн. 12 авг 2025
Дата обновления объявления
3
Количество просмотров (+ просмотры за сегодня)
50 139 ₽/м²
Чистая продажа
Термин "Чистая продажа" означает, что в квартире никто не прописан или
есть куда выписаться и вывезти вещи. Это лучший вариант для покупателя.
Вероятность срыва сделки минимальна.
Этажей2
Площадь участка19 соток
Общая площадь179,5 м2
Материал домадерево
ЭлектричествоЕсть
Газоснабжениецентральное
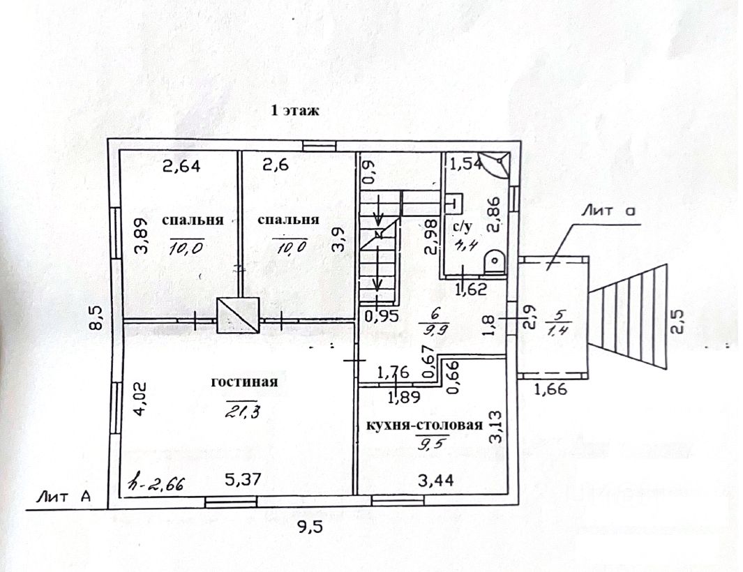
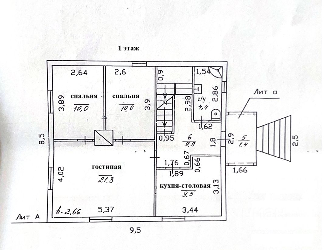
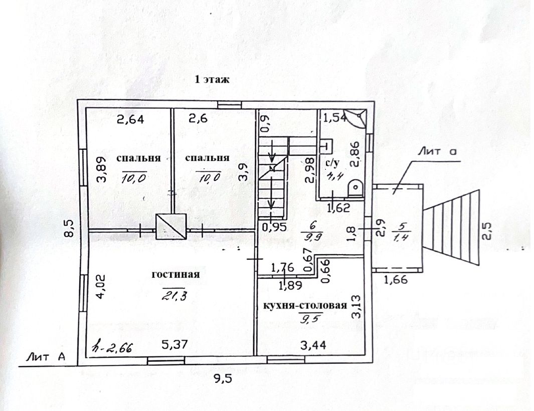
ПОД АВАНСОМ до 26 августа. Жилой дом для круглогодичного проживания расположен на живописном, просторном участке. Дом из бруса 150х150 обшит сайдингом. Внутренняя отделка выгонка. Магистральный газ (договор с мособлгаз), электричество, скважина, септик, печь-голландка, проводной интернет. Дом полностью готов к проживанию, не требует дополнительных вложений. Фундамент в отличном состоянии. Цокольный этаж очень сухой и не затапливается в период таяния снега. Актуальная планировка помещений дома отражена на представленном плане. Ухоженный участок, спланирован в виде естественного, тенистого парка. На территории участка также находится гостевой дом-баня, хозблок и навес для автомобиля. На все строения оформлена собственность. Участок имеет два въезда.
ПОД АВАНСОМ до 26 августа. Жилой дом для круглогодичного проживания расположен на живописном, просторном участке. Дом из бруса 150х150 обшит сайдингом. Внутренняя отделка выгонка. Магистральный газ (договор с мособлгаз), электричество, скважина, септик, печь-голландка, проводной интернет. Дом полностью готов к проживанию, не требует дополнительных вложений. Фундамент в отличном состоянии. Цокольный этаж очень сухой и не затапливается в период таяния снега. Актуальная планировка помещений дома отражена на представленном плане. Ухоженный участок, спланирован в виде естественного, тенистого парка. На территории участка также находится гостевой дом-баня, хозблок и навес для автомобиля. На все строения оформлена собственность. Участок имеет два въезда. Дороги чистят в зимний период, так как многие в дачном поселке проживают постоянно. Собственность более 18 лет. Показ по предварительной договоренности. Звоните, отвечать оперативно на сообщения не имею возможности.