Если цена в объявлении изменится, мы сразу сообщим вам об этом на электронную почту.
Нажимая «Подписаться», вы соглашаетесь с правилами.
продам дом, Волжский16 500 000 ₽
4 июля 2025
Дата публикации объявления
Обн. 18 авг
Дата обновления объявления
2
Количество просмотров (+ просмотры за сегодня)
107 492 ₽/м²
Чистая продажа
Термин "Чистая продажа" означает, что в квартире никто не прописан или
есть куда выписаться и вывезти вещи. Это лучший вариант для покупателя.
Вероятность срыва сделки минимальна.
Этажей2
Площадь участка8,1 соток
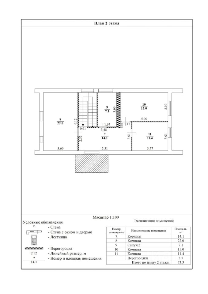
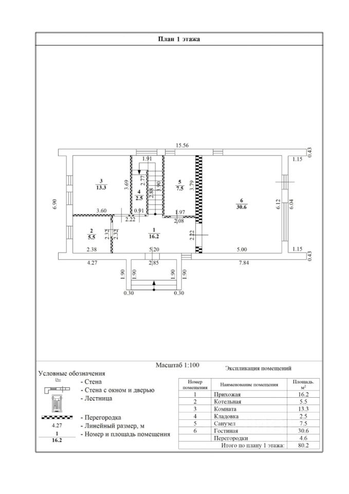
Общая площадь153,5 м2
ЭлектричествоЕсть
Газоснабжениецентральное
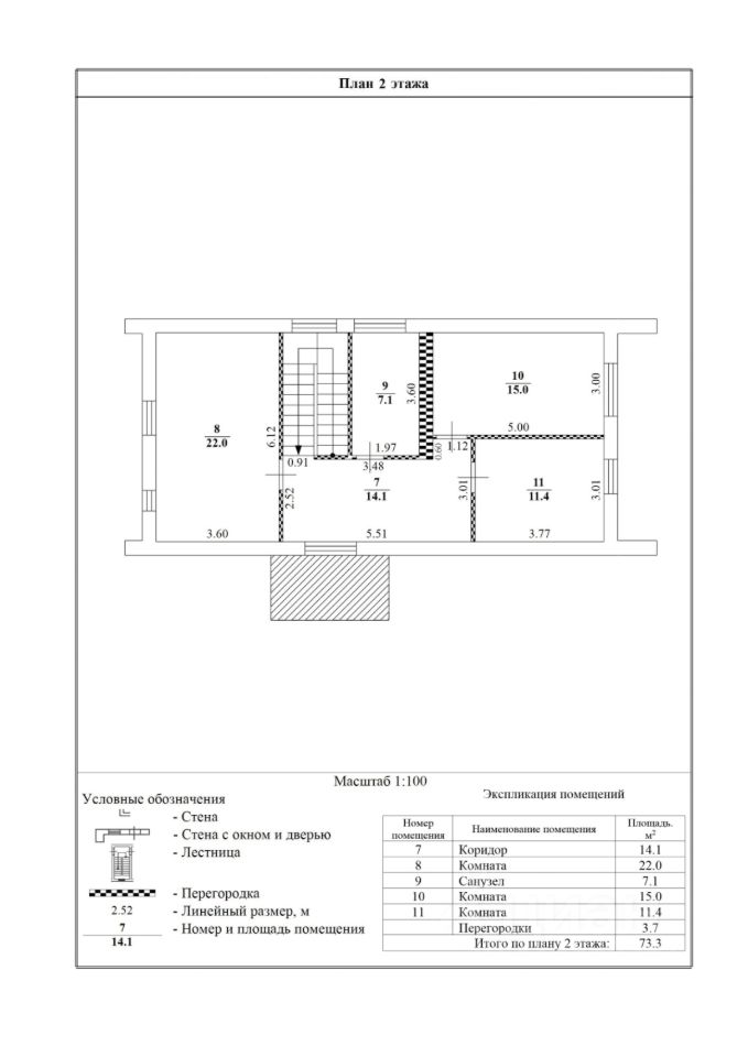
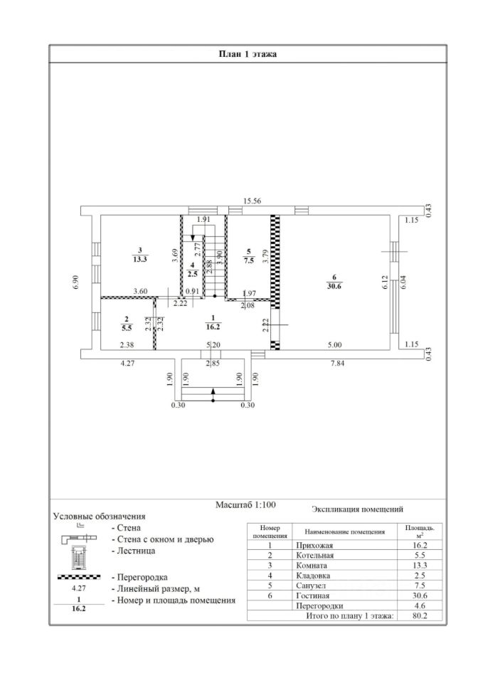
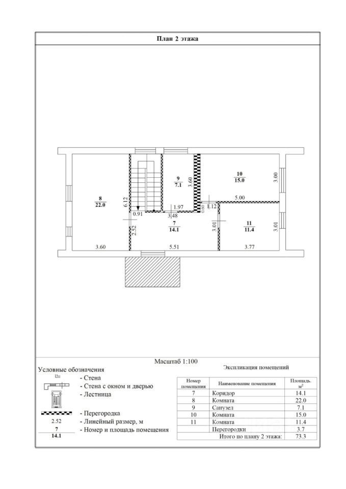
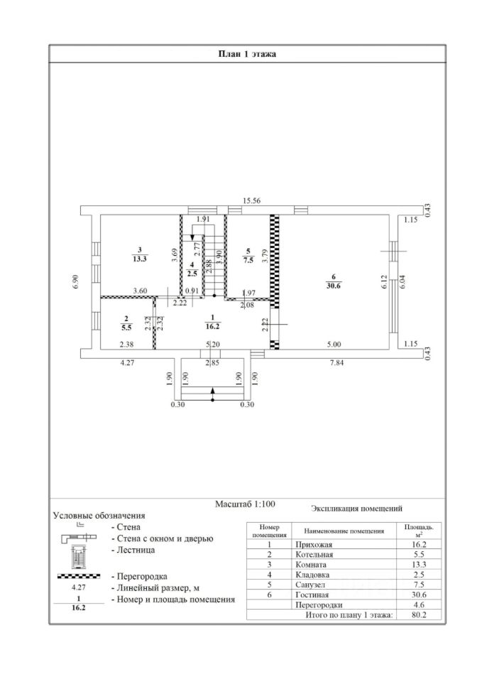
Готовый дом от застройщика, площадью 153,5 кв метра. Можно в ипотеку. Земельный участок ИЖС - 8,1 сотки, прямоугольный. Свайный железобетонный фундамент, железобетонные перекрытия 1го и 2го этажа, крыша утепление 200 мм, блоки 400мм, теплосберегающие стеклопакеты. Планировка: 1й этаж: Просторный коридор, санузел, гостевая комната/кабинет, тех комната (котельная), кухня-гостиная с панорамными окнами и выходом на улицу (конструктив предполагает возможность пристроить террасу. 2й этаж: Хозяйская спальня, 2 спальные комнаты (детские, гостевые), санузел, коридор.
Готовый дом от застройщика, площадью 153,5 кв метра. Можно в ипотеку. Земельный участок ИЖС - 8,1 сотки, прямоугольный. Свайный железобетонный фундамент, железобетонные перекрытия 1го и 2го этажа, крыша утепление 200 мм, блоки 400мм, теплосберегающие стеклопакеты. Планировка: 1й этаж: Просторный коридор, санузел, гостевая комната/кабинет, тех комната (котельная), кухня-гостиная с панорамными окнами и выходом на улицу (конструктив предполагает возможность пристроить террасу. 2й этаж: Хозяйская спальня, 2 спальные комнаты (детские, гостевые), санузел, коридор. Инженерные сети: - Электричество 15 КВт - заведено в дом - Вода, центральный водопровод заведен в дом - Канализация автономная (ЛОС - локальная канализация готова к запуску) заведена в дом. - Оптический кабель для подключения интернета заведен в дом. - Газ - социальный по границе участка - Заземление - Индивидуальный контур, заведен в дом. В текущем моменте выполняется благоустройство участка: Забор штакетник, отмостка брусчатка, парковочное место брусчатка, обсыпка участка черноземом.